Industrial Loft - Design
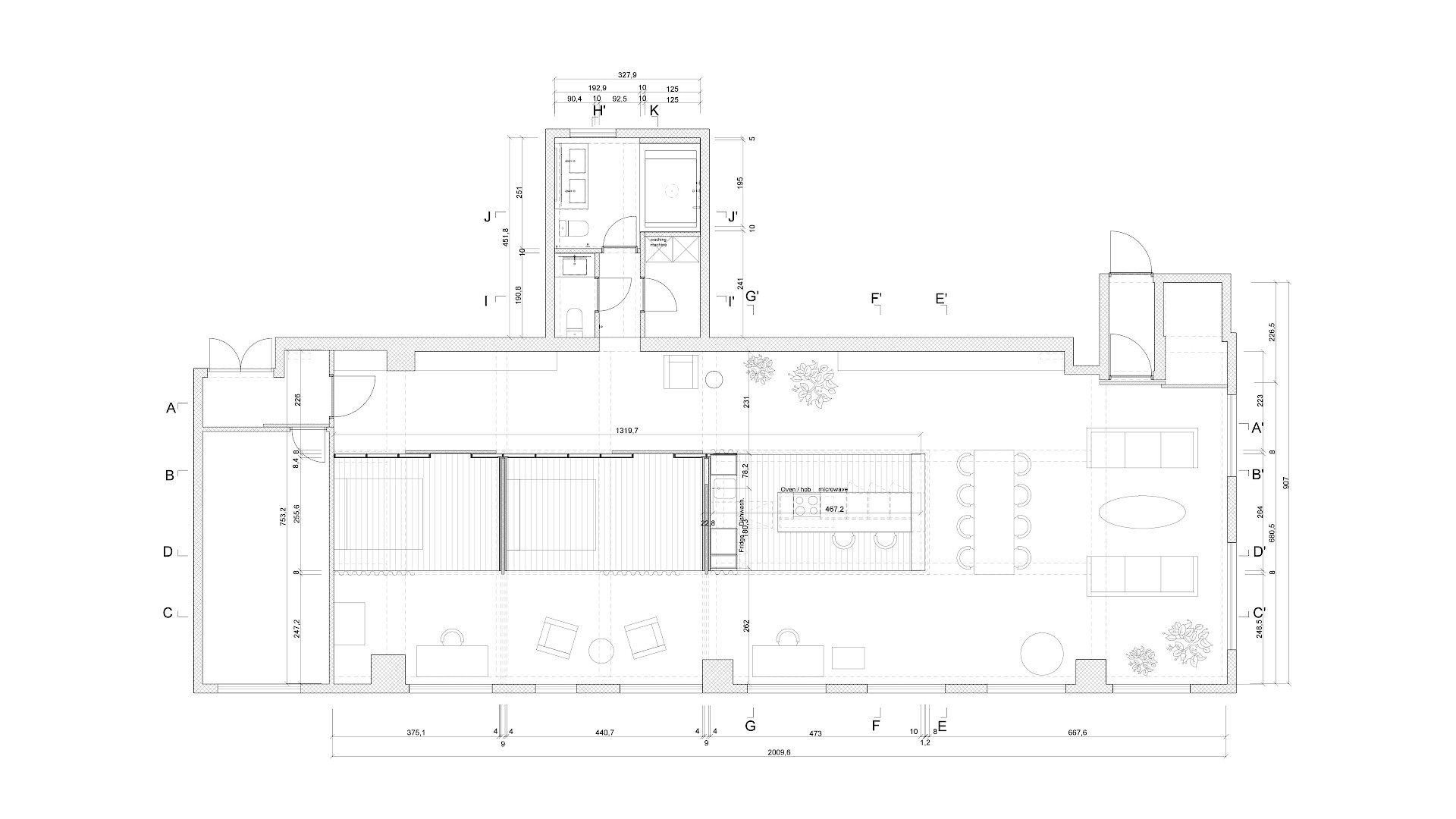
Industrial Loft is a design project that reinterprets a typical Hong Kong industrial space as a domestic environment, organized as a flexible open plan that alternates between working and social uses. The spatial concept is informed by the existing structural grid, which guides the organization of functions and articulates different zones within the loft. While preserving the raw industrial character of the space, the project introduces subtle material distinctions to define degrees of privacy, allowing the interior to adapt to both everyday living and collective activities without relying on fixed partitions.
Location: Hong Kong
Date: 2015
Client: Private
Authors: Géraldine Borio with Caroline Wüthrich
Assistant: Sam Wu, Paul Li - Photography: ng studio
Award
The project received the Hong Kong Design Award 2016.








