Wut Tung Sat - Design
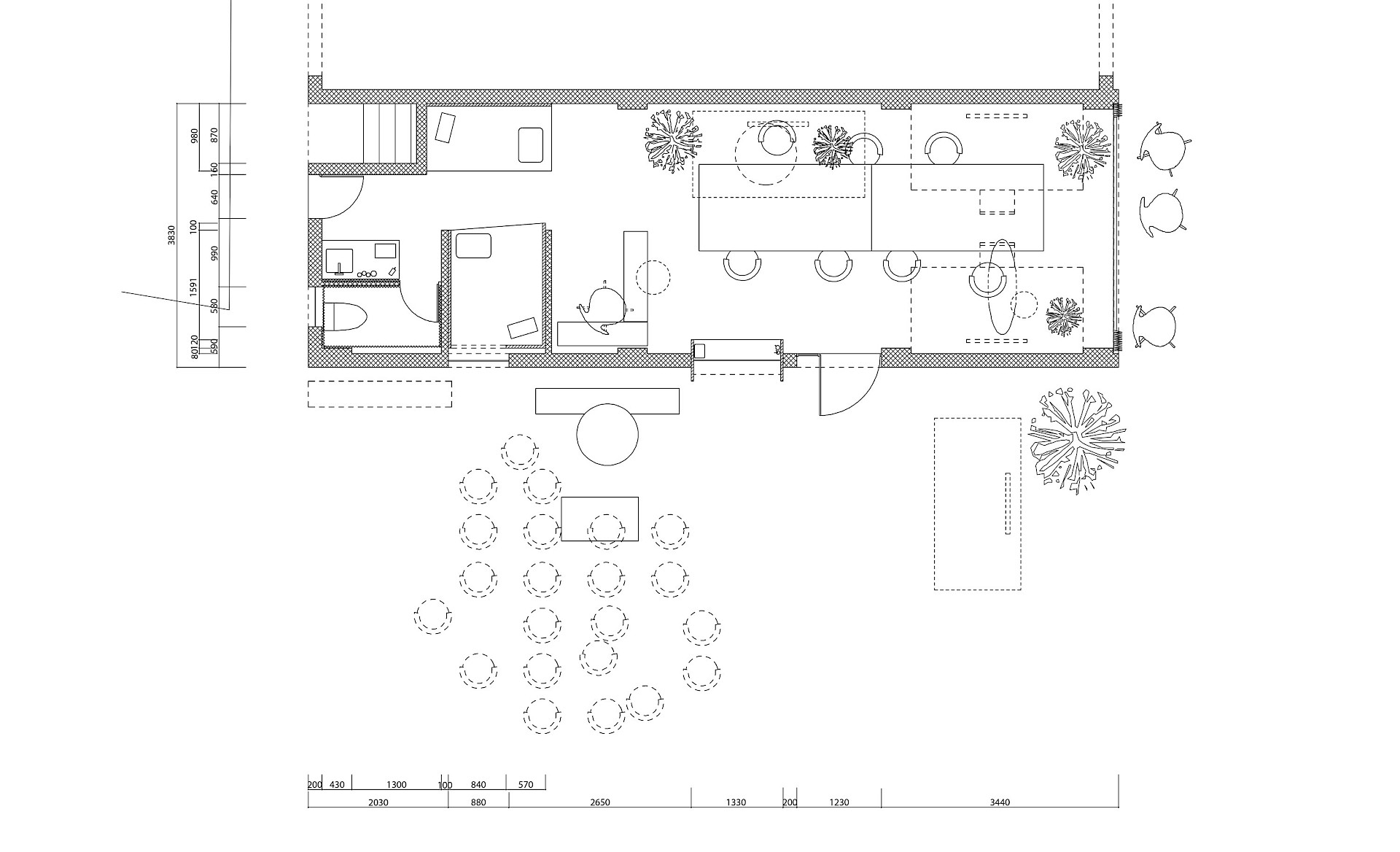
The “Wut Tung Sat” project was intended as a testing unit for exploring the articulation of space within the main village on Peng Chau Island. Wut Tung Sat means “activity room” and was conceived as an open platform to host various types of activities that reflected the needs and the dreams of the island. Over a period of two years, the space was used by the inhabitants to organize clothes-swapping events, permaculture workshops, foreign artists residencies, movie projections, various types of exhibitions, community gatherings, and local food events. The dynamic of this ever-changing condition was used as an opportunity to carry out various spatial experiments. Being at the same time the architect of the various setups and also a user of the space, this dual role led to a reflection on the design principles.
Location: Peng Chau Island, Hong Kong
Date: 2017 - 2019
Project initiator and Author: Géraldine Borio
Contributor: Jae Hyun Lim - Contractor: David Lam - Craftsman: Ah San - Graphic Design: Klaus Stille












